allege-musee1

Gwangyang, Corée du sud Architecture

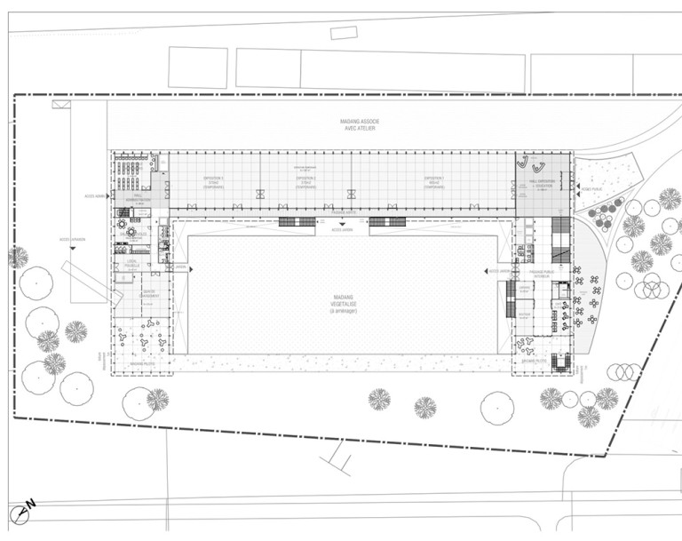
Musée de région Jeon-Nam

Musée Culture Corée
  • Catégorie

    Architecture
  • Programme

    Musée régional

  • Surface

    12 000 m² SDP

  • Mission / Phases

    Concours

  • MOA

    Région Jeon-Nam, Corée du Sud

  • MOE

    SATHY | Archipoly

  • Budget

    N.C.

  • Calendrier

    2016
8
9
10
11
13
allege-musee3